For Sale - 945 O'connor Drive Unit# 5, Toronto, Ontario

Est payment $5,234/mo
Views   1
Time on Jump  72 day
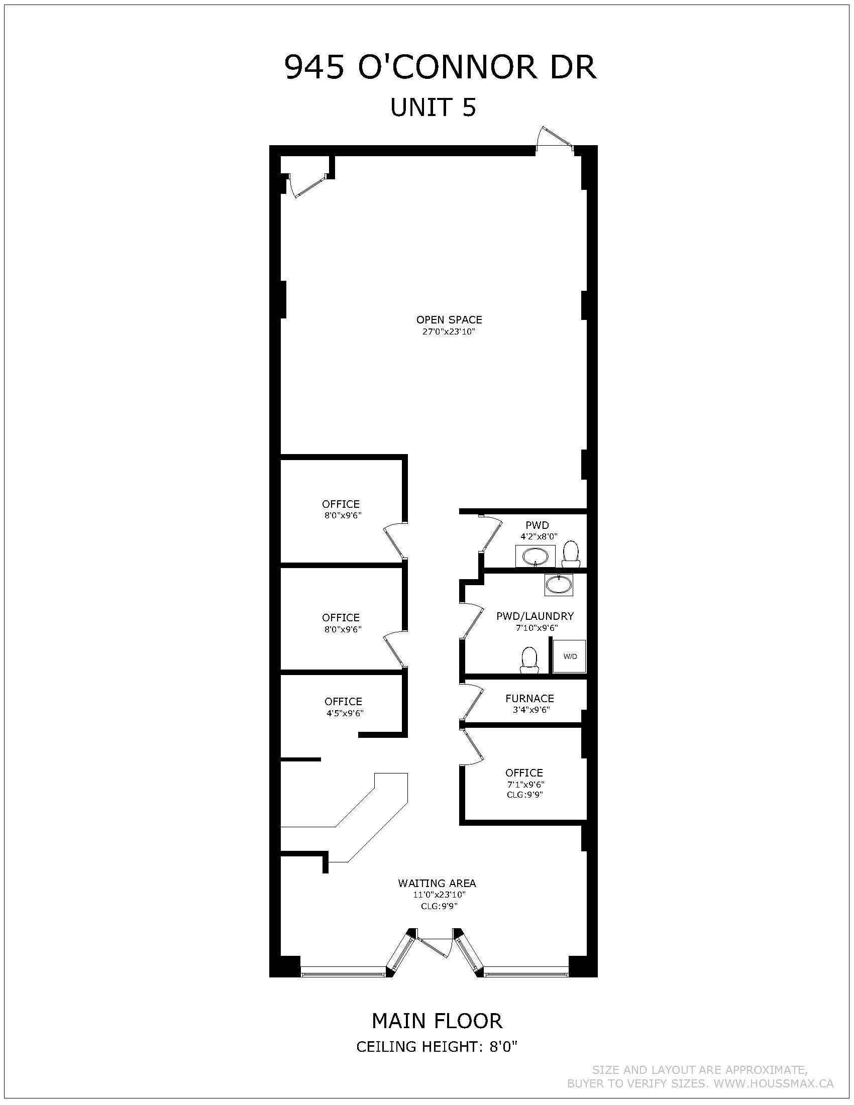
  • Over 1600 sq.ft. of versatile retail space in a prime location.
  • Fully equipped for healthcare with treatment rooms and a reception area.
  • Turnkey setup perfect for medical or wellness professionals.
  • Excellent visibility and easy access for clients and customers.
  • Ample parking in a well-maintained professional complex.



Prime opportunity to own over 1600 sq. Ft. Retail commercial space in the o'connor parkview. This retail condo is located directly on o'connor drive at in a sought-after professional complex. Currently set up as a fully equipped medical practice with chiropractic, physiotherapy, and massage treatment rooms. Offers a welcoming reception and waiting area, multiple private treatment rooms, a washroom, and staff space. Ideal turnkey setup for healthcare professionals, wellness practitioners, or other service-based businesses seeking a ready-to-go space. Excellent visibility, ample parking, and a professionally maintained building make this an outstanding investment or owner-user opportunity.
Listing IDE12713654
Address945 O'connor Drive Unit# 5
CityToronto, Ontario
Price$1,089,900
StyleCommercial Retail
TypeIndustrial/Commercial
StatusFor Sale
Subtype Commercial RetailCommunity Features Public TransitHeating / Cooling Gas Forced Air Open
ASAP

Fri

3

Apr

Sat

4

Apr

Sun

5

Apr

Mon

6

Apr

Tue

7

Apr

Wed

8

Apr

Thu

9

Apr

Fri

10

Apr

Sat

11

Apr

Sun

12

Apr

Mon

13

Apr

Tue

14

Apr

Wed

15

Apr

Thu

16

Apr

Fri

17

Apr

Sat

18

Apr

Sun

19

Apr

Mon

20

Apr

Tue

21

Apr

Wed

22

Apr

Thu

23

Apr

Fri

24

Apr

Sat

25

Apr

Sun

26

Apr

Mon

27

Apr

Tue

28

Apr

Wed

29

Apr

Thu

30

Apr

Fri

1

May

By clicking “Get pre-qualified” and/or 'Submit' you are expressly consenting, in writing, to receive telemarketing and other messages, including artificial or prerecorded voices, via automated calls or texts from jumprealty.ca and up.mortgages at the number you provided above. This consent is not required to purchase any good or service. Message and data rates may apply, frequency varies. Text HELP for help or STOP to cancel. More details in Terms of Use and Privacy Policy.

Listing Agency:  PROPERTY.CA INC.

* Data is provided courtesy of PROPTX. The information provided herein must only be used by consumers that have a bona fide interest in the purchase, sale, or lease of real estate and may not be used for any commercial purpose or any other purpose. The information is deemed reliable but is not guaranteed accurate by PROPTX.

Hospital
Parks
Schools
Place of Worship
Please select an amenity above to view a list.

Recommended Properties

Loading...
945 O'connor Drive Unit# 5
Toronto , Ontario
$1,089,900
Get more info