For Sale - 97 Tracey Lane, Collingwood, Ontario

Est payment $3,933/mo
Views   1
Time on Jump  50 day
  • Located in a desirable four-season community in Collingwood.
  • Open-concept layout with 9-foot ceilings and hardwood floors.
  • Bright natural light fills the living and dining areas.
  • Spacious primary bedroom with a luxurious ensuite bathroom.
  • Unfinished basement offers customization potential for various uses.



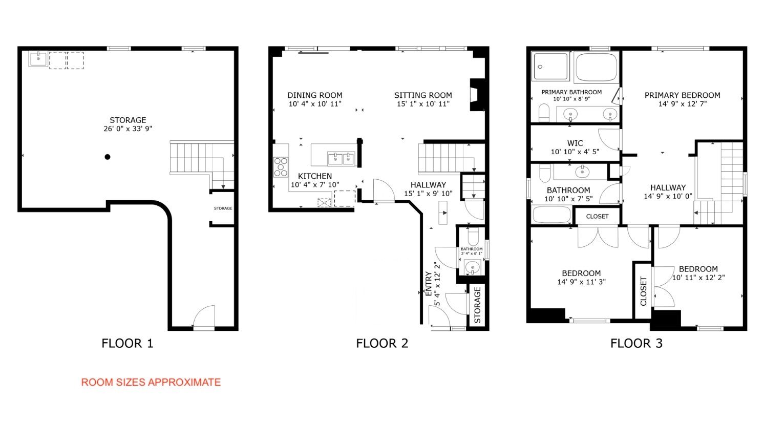
Welcome to 97 tracey lane, a fantastic opportunity to own in one of collingwood's most desirable four-season communities. Offering 3 bedrooms, 2 full bathrooms, and a powder room, this home is perfectly suited to couples, small families, retirees, or investors looking for a versatile property in an exceptional location. Inside, the home features a functional and inviting open-concept layout designed for comfortable everyday living. The main floor showcases 9-foot ceilings, hardwood floors, and an oak staircase, creating a warm and welcoming atmosphere with timeless appeal. Large windows and the home's southern exposure bring in an abundance of soft natural light, filling the principal rooms with a bright and airy feel throughout the day. The kitchen and adjoining living and dining areas form a comfortable hub for daily life and casual entertaining. Upstairs, the spacious primary bedroom offers a calm and private retreat, complete with a five-piece ensuite featuring double sinks, a soaker tub, and a separate glass shower. Updated laminate flooring adds a fresh, modern touch, while two additional bedrooms provide flexible space for family, guests, or a dedicated home office. The unfinished basement offers excellent potential for future customization, whether for added living space, a recreation area, workout room, or extra storage, with a rough-in already in place for a fourth bathroom. Set in a desirable collingwood neighbourhood close to amenities, trails, golf, downtown collingwood, and blue mountain resort, this home offers the best of four-season living as a full-time residence, weekend getaway, or income property.
Listing IDS12782280
Address97 Tracey Lane
CityCollingwood, Ontario
Price$819,000
Bed / Bath3 / 3 Full
Style2-Storey, Detached
ConstructionBrick
TypeResidential
StatusFor Sale
Subtype DetachedIndoor Features Air ExchangerOwnership FreeholdBasement Full, UnfinishedFoundation ConcreteHeating / Cooling Forced AirHeating Fuel GasSewer Sewer
Parking 6.00
ASAP

Sat

4

Apr

Sun

5

Apr

Mon

6

Apr

Tue

7

Apr

Wed

8

Apr

Thu

9

Apr

Fri

10

Apr

Sat

11

Apr

Sun

12

Apr

Mon

13

Apr

Tue

14

Apr

Wed

15

Apr

Thu

16

Apr

Fri

17

Apr

Sat

18

Apr

Sun

19

Apr

Mon

20

Apr

Tue

21

Apr

Wed

22

Apr

Thu

23

Apr

Fri

24

Apr

Sat

25

Apr

Sun

26

Apr

Mon

27

Apr

Tue

28

Apr

Wed

29

Apr

Thu

30

Apr

Fri

1

May

Sat

2

May

By clicking “Get pre-qualified” and/or 'Submit' you are expressly consenting, in writing, to receive telemarketing and other messages, including artificial or prerecorded voices, via automated calls or texts from jumprealty.ca and up.mortgages at the number you provided above. This consent is not required to purchase any good or service. Message and data rates may apply, frequency varies. Text HELP for help or STOP to cancel. More details in Terms of Use and Privacy Policy.

Listing Agency:  RE/MAX By The Bay Brokerage

* Data is provided courtesy of PROPTX. The information provided herein must only be used by consumers that have a bona fide interest in the purchase, sale, or lease of real estate and may not be used for any commercial purpose or any other purpose. The information is deemed reliable but is not guaranteed accurate by PROPTX.

Hospital
Parks
Schools
Place of Worship
Please select an amenity above to view a list.

Recommended Properties

Loading...
97 Tracey Lane
Collingwood , Ontario
3 3 $819,000
Get more info