For Sale - 99 King Street, Gananoque, Ontario

Est payment $7,443/mo
Views   1
Time on Jump  1 days
  • Rare mixed-use property in the heart of downtown Gananoque.
  • Spacious commercial space with vaulted ceilings, perfect for various businesses.
  • Bright upper-level residential unit with separate entrance and patio access.
  • Close to shops, restaurants, and the waterfront for high visibility.
  • Ideal for investors or entrepreneurs looking for versatile use options.



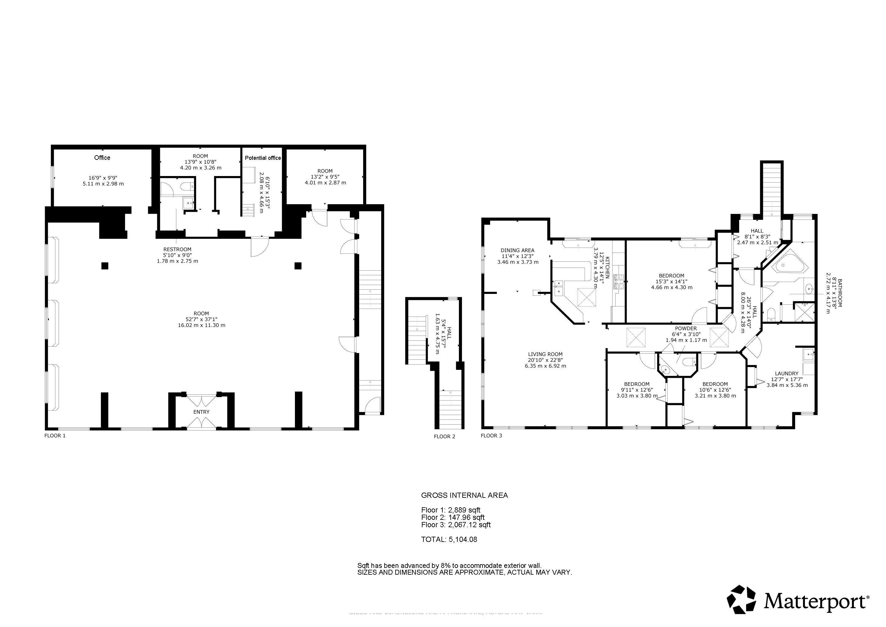
Welcome to 99 king street east, a rare mixed use opportunity in the heart of downtown gananoque. This landmark corner property offers exceptional visibility at king and stone, just steps from shops, restaurants, and the waterfront. The main level features nearly 3,000 sq. Ft. Of open commercial space with soaring vaulted ceilings, originally designed as a bank. Bright, versatile, and full of character, it includes a private office, full bath and a second level mezzanine ideal for storage or an additional workspace. With its prominent storefront exposure, this level is perfectly suited for a gallery, retail shop, studio, professional office, or a business looking for high foot traffic. The upper level offers a spacious three bedroom, one bath residential unit with its own private entrance. The layout includes a large living room, dining room, and an eat in eden style kitchen, along with access to an outdoor patio area. A great option for owner occupancy or as a reliable income producing rental. Whether you're an investor seeking a strong mixed use asset, an entrepreneur wanting to live above your business, or a buyer looking to expand your portfolio in a growing community, this property delivers flexibility, character, and long term potential in one of gananoque's most desirable commercial corridors.
Listing IDX13048254
Address99 King Street
CityGananoque, Ontario
Price$1,550,000
Bed / Bath3 / 3 Full
Style2-Storey, Detached
ConstructionBrick, Stone
Land Size0.078
TypeResidential
StatusFor Sale
Subtype DetachedIndoor Features StorageOutdoor Features Deck, Year Round LivingAmenities Library, Other, Park, School, School Bus RouteOwnership FreeholdViews City, DowntownAppliances Bath Grab Bars, Stair LiftBasement NoneFoundation StoneHeating / Cooling Forced AirHeating Fuel ElectricSewer Sewer
Parking 1.00
ASAP

Tue

28

Apr

Wed

29

Apr

Thu

30

Apr

Fri

1

May

Sat

2

May

Sun

3

May

Mon

4

May

Tue

5

May

Wed

6

May

Thu

7

May

Fri

8

May

Sat

9

May

Sun

10

May

Mon

11

May

Tue

12

May

Wed

13

May

Thu

14

May

Fri

15

May

Sat

16

May

Sun

17

May

Mon

18

May

Tue

19

May

Wed

20

May

Thu

21

May

Fri

22

May

Sat

23

May

Sun

24

May

Mon

25

May

Tue

26

May

By clicking “Get pre-qualified” and/or 'Submit' you are expressly consenting, in writing, to receive telemarketing and other messages, including artificial or prerecorded voices, via automated calls or texts from jumprealty.ca and up.mortgages at the number you provided above. This consent is not required to purchase any good or service. Message and data rates may apply, frequency varies. Text HELP for help or STOP to cancel. More details in Terms of Use and Privacy Policy.

Listing Agency:  ROYAL LEPAGE PROALLIANCE REALTY, BROKERAGE

* Data is provided courtesy of PROPTX. The information provided herein must only be used by consumers that have a bona fide interest in the purchase, sale, or lease of real estate and may not be used for any commercial purpose or any other purpose. The information is deemed reliable but is not guaranteed accurate by PROPTX.

Hospital
Parks
Schools
Place of Worship
Please select an amenity above to view a list.

Recommended Properties

Loading...
99 King Street
Gananoque , Ontario
3 3 $1,550,000
Get more info