For Sale - Lot 32 White Pine Street, London North, Ontario

Est payment $5,738/mo
Views   1
Time on Jump  1 days
  • Thoughtfully designed 2-storey home with 4 bedrooms and 2.5 baths.
  • Spacious living area and dining room great for entertaining and daily living.
  • Large hidden pantry in the kitchen adds convenience and storage.
  • Private office space ideal for working from home or managing tasks.
  • Quick access to parks, schools, shopping, and major highways.



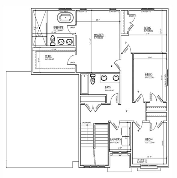
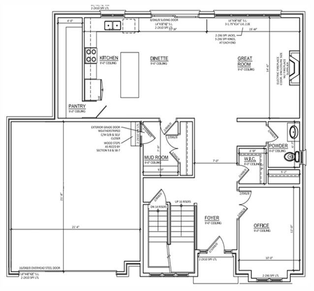
Royal oak homes proudly presents the luca, a thoughtfully designed 2-storey home featuring 4 bedrooms, 2. 5 baths, and a spacious 2-car garage to be built in the prestigious sunningdale crossings community in north london . With its smart layout and modern finishes, this model perfectly blends style, comfort, and functionality for todays families. The main floor offers a huge living area, dining room, and kitchen, highlighted by a large hidden pantry that extends the full length of the kitchen, a true showpiece for both entertaining and everyday living. A private office on the main floor provides the perfect space for working from home or managing household tasks. The upper level is home to all four bedrooms, including a generous primary suite with a luxurious 5-piece ensuite. A convenient laundry room completes the upstairs, designed to make daily routines easier. Thoughtfully designed with the perfect placement of windows throughout the home including along the staircase. The luca is filled with natural light, creating a warm and inviting atmosphere in every space. Enjoy quick access to parks, scenic trails, top-rated schools, shopping, and major highways. More plans and lots are available. Photos are from previous models for illustrative purposes; each model differs in design and client selections.
Listing IDX12946058
AddressLot 32 White Pine Street
CityLondon North, Ontario
Price$1,194,900
Bed / Bath4 / 3 Full
Style2-Storey, Detached
ConstructionBrick, Hardboard
TypeResidential
StatusFor Sale
Subtype DetachedIndoor Features Auto Garage Door Remote, Sump PumpAmenities Park, Public Transit, Golf, School Bus RouteOwnership FreeholdWaterfront NoneBasement UnfinishedFoundation Poured ConcreteHeating / Cooling Forced AirHeating Fuel GasSewer Sewer
Parking 4.00
ASAP

Thu

2

Apr

Fri

3

Apr

Sat

4

Apr

Sun

5

Apr

Mon

6

Apr

Tue

7

Apr

Wed

8

Apr

Thu

9

Apr

Fri

10

Apr

Sat

11

Apr

Sun

12

Apr

Mon

13

Apr

Tue

14

Apr

Wed

15

Apr

Thu

16

Apr

Fri

17

Apr

Sat

18

Apr

Sun

19

Apr

Mon

20

Apr

Tue

21

Apr

Wed

22

Apr

Thu

23

Apr

Fri

24

Apr

Sat

25

Apr

Sun

26

Apr

Mon

27

Apr

Tue

28

Apr

Wed

29

Apr

Thu

30

Apr

By clicking “Get pre-qualified” and/or 'Submit' you are expressly consenting, in writing, to receive telemarketing and other messages, including artificial or prerecorded voices, via automated calls or texts from jumprealty.ca and up.mortgages at the number you provided above. This consent is not required to purchase any good or service. Message and data rates may apply, frequency varies. Text HELP for help or STOP to cancel. More details in Terms of Use and Privacy Policy.

Listing Agency:  CENTURY 21 FIRST CANADIAN CORP

* Data is provided courtesy of PROPTX. The information provided herein must only be used by consumers that have a bona fide interest in the purchase, sale, or lease of real estate and may not be used for any commercial purpose or any other purpose. The information is deemed reliable but is not guaranteed accurate by PROPTX.

Hospital
Parks
Schools
Place of Worship
Please select an amenity above to view a list.

Recommended Properties

Loading...
Lot 32 White Pine Street
London North , Ontario
4 3 $1,194,900
Get more info