For Sale - Lot 3635 De Pencier Drive, North Grenville, Ontario

Est payment $2,588/mo
Views   1
Time on Jump  1 days
  • Charming 3-bedroom townhome in a vibrant Kemptville community.
  • Look-out basement with a versatile recreation room for extra space.
  • Energy Star certified for energy efficiency and lower bills.
  • Upgraded kitchen with quartz countertops and a lovely deck view.
  • Close to shopping, top schools, parks, and outdoor activities.



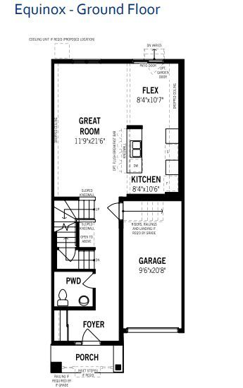
Welcome to the equinox, your new home sweet home in the vibrant community of oxford village, kemptville. This charming 3-bedroom, 2. 5-bathroom townhome features a look-out basement, over-looking greenspace and is energy star certified. As you approach, the quaint front porch welcomes you into a warm and inviting foyer, complete with a closet and powder room. The main level boasts 9-foot ceilings and elegant hardwood flooring, leading to a convenient mudroom with garage access and additional closet space. At the heart of the home, the kitchen shines with upgraded quartz countertops, a stylish ceramic backsplash and just outside, an 7'x4' deck overlooking greenspace with stairs down to the backyard. Upstairs, you'll find a full bathroom, a linen closet, laundry room, along with three well-appointed bedrooms and a beautiful ensuite bathroom off of the primary suite. Enhancing the living space, this townhome includes a partially finished, look-out basement with a versatile recreation room. This property comes with a 7-year tarion home warranty, providing added peace of mind. With excellent shopping, top-rated schools, lush parks, and a variety of outdoor recreational activities, kemptville offers a vibrant and convenient lifestyle for its residents. Additional optional upgrades are available to further personalize your home (chef's kitchen, ensuite bath oasis, finished bathroom in basement, etc).
Listing IDX13056084
AddressLot 3635 De Pencier Drive
CityNorth Grenville, Ontario
Price$538,990
Bed / Bath3 / 3 Full
Style2-Storey, Att/Row/Townhouse
ConstructionBrick, Vinyl Siding
TypeResidential
StatusFor Sale
Subtype Att/Row/TownhouseIndoor Features Water Heater Owned, On Demand Water HeaterOwnership FreeholdWaterfront NoneBasement Full, Partially FinishedFoundation ConcreteHeating / Cooling Forced AirHeating Fuel GasSewer Sewer
Parking 2.00
ASAP

Thu

30

Apr

Fri

1

May

Sat

2

May

Sun

3

May

Mon

4

May

Tue

5

May

Wed

6

May

Thu

7

May

Fri

8

May

Sat

9

May

Sun

10

May

Mon

11

May

Tue

12

May

Wed

13

May

Thu

14

May

Fri

15

May

Sat

16

May

Sun

17

May

Mon

18

May

Tue

19

May

Wed

20

May

Thu

21

May

Fri

22

May

Sat

23

May

Sun

24

May

Mon

25

May

Tue

26

May

Wed

27

May

Thu

28

May

By clicking “Get pre-qualified” and/or 'Submit' you are expressly consenting, in writing, to receive telemarketing and other messages, including artificial or prerecorded voices, via automated calls or texts from jumprealty.ca and up.mortgages at the number you provided above. This consent is not required to purchase any good or service. Message and data rates may apply, frequency varies. Text HELP for help or STOP to cancel. More details in Terms of Use and Privacy Policy.

Listing Agency:  ROYAL LEPAGE TEAM REALTY

* Data is provided courtesy of PROPTX. The information provided herein must only be used by consumers that have a bona fide interest in the purchase, sale, or lease of real estate and may not be used for any commercial purpose or any other purpose. The information is deemed reliable but is not guaranteed accurate by PROPTX.

Hospital
Parks
Schools
Place of Worship
Please select an amenity above to view a list.

Recommended Properties

Loading...
Lot 3635 De Pencier Drive
North Grenville , Ontario
3 3 $538,990
Get more info