For Sale - Lot 41 Marcus Avenue, Southwest Middlesex, Ontario

Est payment $3,120/mo
Views   2
Time on Jump  14 day
  • New homes in Glencoe with signature craftsmanship and thoughtful designs.
  • Eras model offers 1,794 sq ft of functional living space.
  • Open-concept main level ideal for everyday living and entertaining.
  • Spacious primary suite with walk-in closet and 5-piece ensuite bathroom.
  • Unfinished basement provides potential for additional living space.



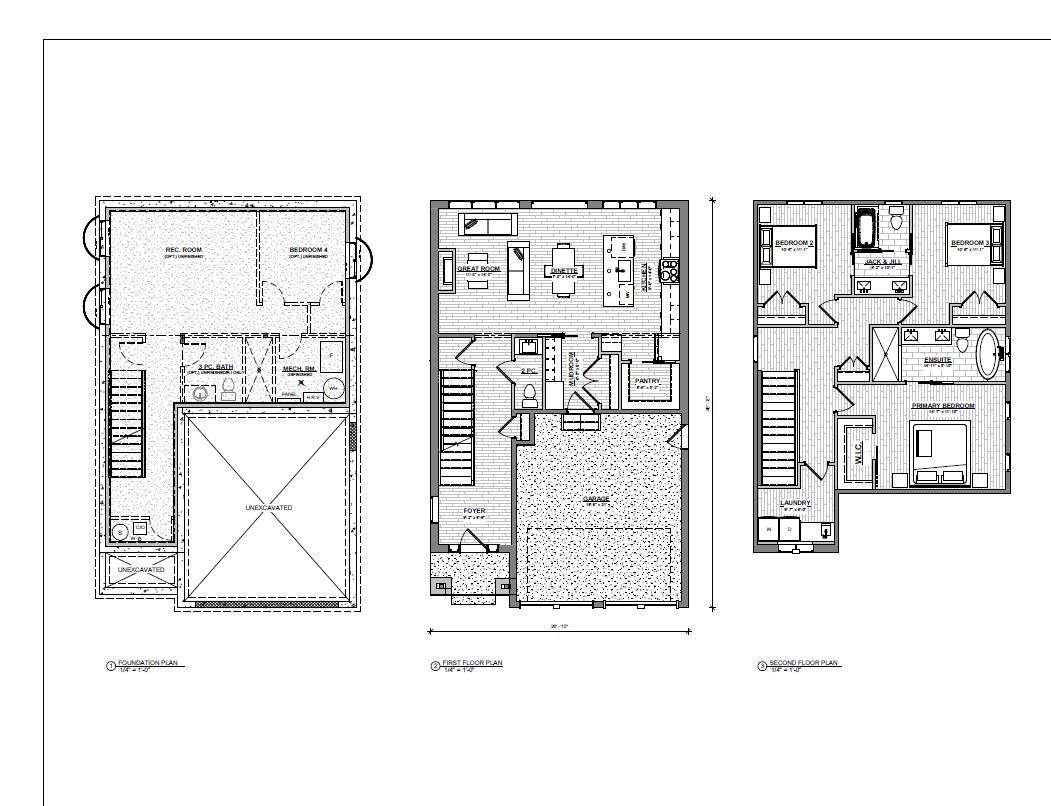
Carmo building group is now offering homes in glencoe, bringing its signature craftsmanship and thoughtful designs to this growing southwest middlesex community. Proposed for lot 41 marcus avenue, the eras model features a classic brick and vinyl exterior and offers 1,794 sq ft of above-grade finished living space in a thoughtfully designed two-storey layout with a built-in double garage, set on a 37' x 124' lot. Inside, the main level is centred around open-concept living, with the kitchen, dining area, and great room flowing together for easy everyday living and entertaining, along with a pantry and practical mudroom for added function. Upstairs, the layout includes convenient second-floor laundry, a spacious primary suite with a walk-in closet and 5-piece ensuite, and two additional bedrooms connected by a semi-ensuite jack and jill-style bathroom. An unfinished full basement with rough-in bath offers future potential for added living space, while buyers also have the opportunity to work with carmo building group on custom home options, subject to lot fit and zoning requirements.
Listing IDX12909626
AddressLot 41 Marcus Avenue
CitySouthwest Middlesex, Ontario
Price$649,700
Bed / Bath3 / 3 Full
Style2-Storey, Detached
ConstructionBrick, Vinyl Siding
TypeResidential
StatusFor Sale
Subtype DetachedIndoor Features Rough-In Bath, ERV/HRVOwnership FreeholdBasement Unfinished, FullFoundation ConcreteHeating / Cooling Forced AirHeating Fuel GasSewer Sewer
Parking 4.00
ASAP

Tue

7

Apr

Wed

8

Apr

Thu

9

Apr

Fri

10

Apr

Sat

11

Apr

Sun

12

Apr

Mon

13

Apr

Tue

14

Apr

Wed

15

Apr

Thu

16

Apr

Fri

17

Apr

Sat

18

Apr

Sun

19

Apr

Mon

20

Apr

Tue

21

Apr

Wed

22

Apr

Thu

23

Apr

Fri

24

Apr

Sat

25

Apr

Sun

26

Apr

Mon

27

Apr

Tue

28

Apr

Wed

29

Apr

Thu

30

Apr

Fri

1

May

Sat

2

May

Sun

3

May

Mon

4

May

Tue

5

May

By clicking “Get pre-qualified” and/or 'Submit' you are expressly consenting, in writing, to receive telemarketing and other messages, including artificial or prerecorded voices, via automated calls or texts from jumprealty.ca and up.mortgages at the number you provided above. This consent is not required to purchase any good or service. Message and data rates may apply, frequency varies. Text HELP for help or STOP to cancel. More details in Terms of Use and Privacy Policy.

Listing Agency:  EXP REALTY

* Data is provided courtesy of PROPTX. The information provided herein must only be used by consumers that have a bona fide interest in the purchase, sale, or lease of real estate and may not be used for any commercial purpose or any other purpose. The information is deemed reliable but is not guaranteed accurate by PROPTX.

Hospital
Parks
Schools
Place of Worship
Please select an amenity above to view a list.

Recommended Properties

Loading...
Lot 41 Marcus Avenue
Southwest Middlesex , Ontario
3 3 $649,700
Get more info