For Sale - Lot 47 Lancaster Drive, Brighton, Ontario

Est payment $3,116/mo
Views   3
Time on Jump  48 day
  • Located in Westgate, a new community near downtown and nature trails.
  • Thoughtfully designed floor plans with quality finishes throughout the home.
  • Bright living/dining area with patio doors leading to the backyard.
  • Flexible second bedroom ideal for guests, an office, or a den.
  • Convenient access to amenities, parks, and recreational facilities nearby.



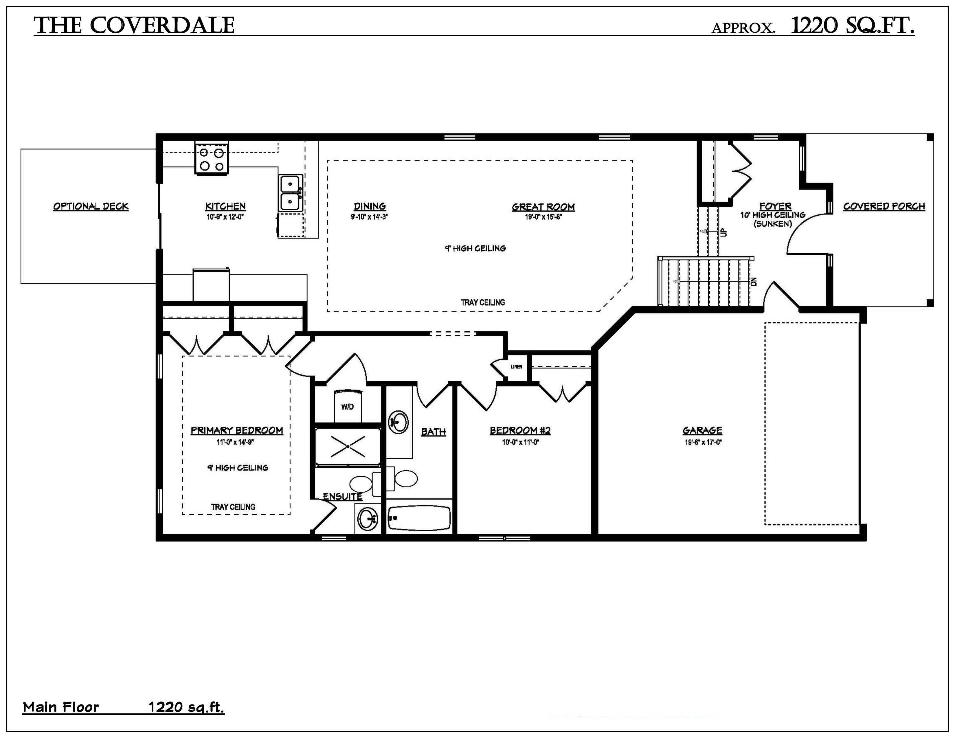
Welcome to westgate, brighton's newest community, offering a selection of thoughtfully designed floor plans, attractive pricing and available lots with closings as early as spring 2027. The neighbourhood is ideally situated between downtown and the stunning presqu'ile provincial park, where you can hike nature trails, enjoy world-class bird watching, swim or relax along sandy beaches. Step inside "the coverdale" from the welcoming covered porch into the front foyer and immediately appreciate the quality finishes throughout the 1220 sq ft main floor. The bright living/dining area features a tray ceiling and durable hard surface flooring flows throughout the main level for everyday practicality. The beautifully appointed custom kitchen with breakfast bar offers patio doors that lead directly to the backyard, ideal for relaxing or entertaining. The large primary bedroom offers double closets and a well-appointed ensuite. A second bedroom provides flexibility for guests, a den or a home office with fibre internet available. Convenient interior access to the attached garage adds to the home's practical layout. The lower level offers excellent potential, providing generous space for future additional bedrooms, a recreation room or additional storage, allowing you to tailor the space to your lifestyle. Features include sod, central air, hrv and high-efficiency furnace for year-round comfort. An excellent opportunity to personalize your dream home with your own selections and finishes from floor to ceiling, inside and out! An unmatched location for recreation and convenience, westgate places you a short bike, stroll or moments drive from brighton's many amenities, including shopping, cafes, restaurants, rec centre, parks, curling club, ymca, schools, tennis and pickleball courts. Several additional floor plans available to suit your living style and needs! Listing price reflects expanded hst new residential rebate for eligible purchasers.
Listing IDX12882226
AddressLot 47 Lancaster Drive
CityBrighton, Ontario
Price$649,000
Bed / Bath2 / 2 Full
StyleBungalow, Detached
ConstructionVinyl Siding
TypeResidential
StatusFor Sale
Subtype DetachedIndoor Features Primary Bedroom - Main Floor, Air Exchanger, ERV/HRV, Rough-In Bath, Ventilation System, Water HeaterOutdoor Features PorchAmenities Beach, Golf, Marina, Lake/Pond, Rec./Commun.Centre, ParkOwnership FreeholdWaterfront NoneBasement Full, UnfinishedFoundation Poured ConcreteHeating / Cooling Forced AirHeating Fuel GasSewer Sewer
Parking 3.50
ASAP

Sat

2

May

Sun

3

May

Mon

4

May

Tue

5

May

Wed

6

May

Thu

7

May

Fri

8

May

Sat

9

May

Sun

10

May

Mon

11

May

Tue

12

May

Wed

13

May

Thu

14

May

Fri

15

May

Sat

16

May

Sun

17

May

Mon

18

May

Tue

19

May

Wed

20

May

Thu

21

May

Fri

22

May

Sat

23

May

Sun

24

May

Mon

25

May

Tue

26

May

Wed

27

May

Thu

28

May

Fri

29

May

Sat

30

May

By clicking “Get pre-qualified” and/or 'Submit' you are expressly consenting, in writing, to receive telemarketing and other messages, including artificial or prerecorded voices, via automated calls or texts from jumprealty.ca and up.mortgages at the number you provided above. This consent is not required to purchase any good or service. Message and data rates may apply, frequency varies. Text HELP for help or STOP to cancel. More details in Terms of Use and Privacy Policy.

Listing Agency:  ROYAL LEPAGE PROALLIANCE REALTY

* Data is provided courtesy of PROPTX. The information provided herein must only be used by consumers that have a bona fide interest in the purchase, sale, or lease of real estate and may not be used for any commercial purpose or any other purpose. The information is deemed reliable but is not guaranteed accurate by PROPTX.

Hospital
Parks
Schools
Place of Worship
Please select an amenity above to view a list.

Recommended Properties

Loading...
Lot 47 Lancaster Drive
Brighton , Ontario
2 2 $649,000
Get more info