For Sale - LOT 49 STELLA Avenue, Southwest Middlesex, Ontario

Est payment $3,015/mo
Views   1
Time on Jump  37 day
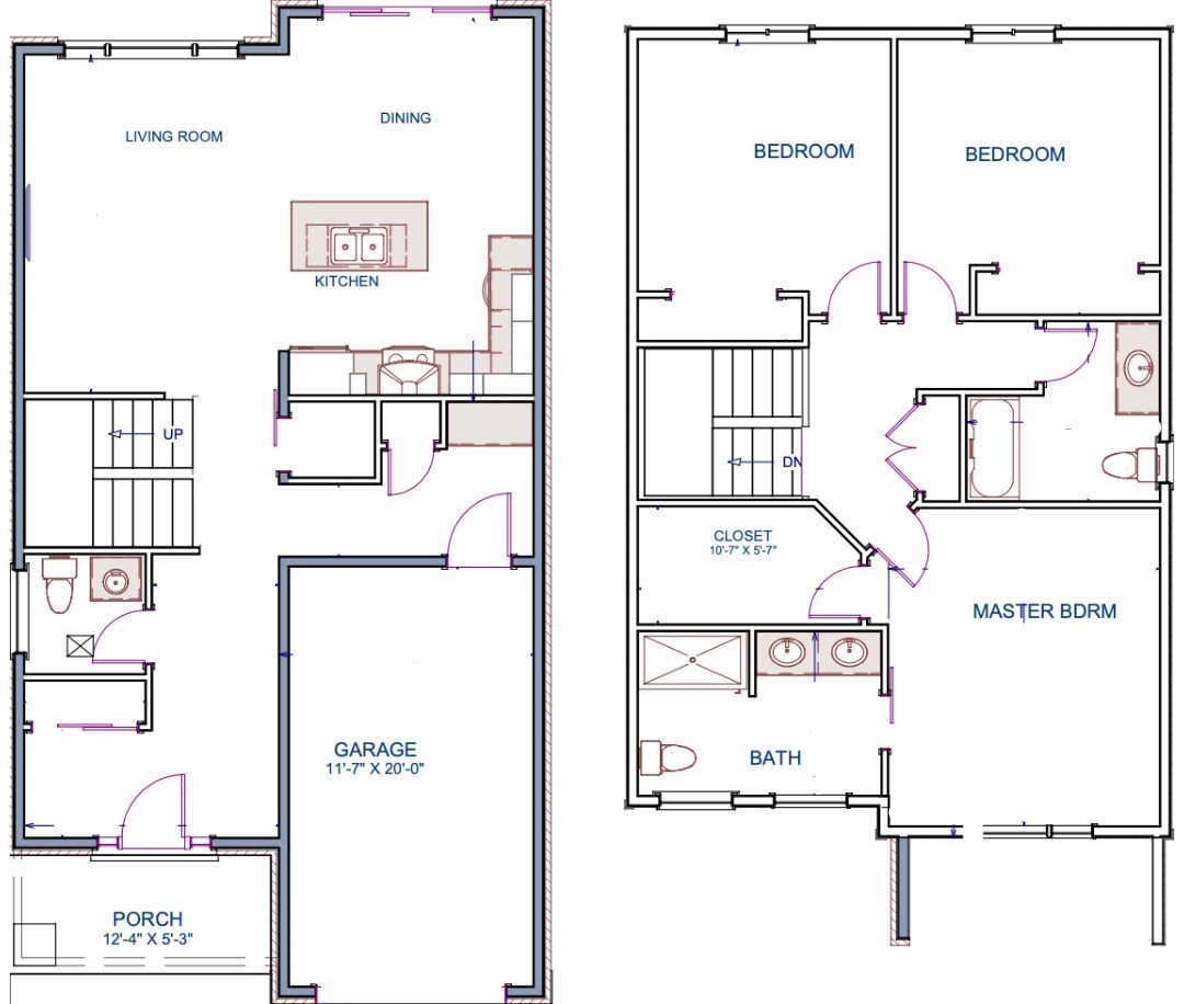
  • New build home with 1,827 sqft of living space across two storeys.
  • Open-concept main level designed for comfortable family living and gatherings.
  • Three spacious bedrooms including a private suite with ensuite bath.
  • Convenient laundry room and additional full bath for daily routines.
  • Lower level has potential for recreation room and extra bedroom.



Welcome to "the tova". This new build home offers 1,827 sqft over two storeys. The open-concept main level blends a bright living room, spacious dining area, and modern kitchen, creating a natural hub for family life. Upstairs, three well-proportioned bedrooms include a private primary suite with a 4pc ensuite bath and generous closet space. The additional full bath and convenient laundry room make daily routines a breeze. The lower level offers future development potential, with space for a recreation room, extra bedroom, and a rough-in for a three-piece bath perfect for growing families or guests. To be built! Other lots and designs are available. Price based on base lot, premiums extra.
Listing IDX12824134
AddressLOT 49 STELLA Avenue
CitySouthwest Middlesex, Ontario
Price$627,850
Bed / Bath3 / 3 Full
Style2-Storey, Detached
ConstructionVinyl Siding, Brick
TypeResidential
StatusFor Sale
Subtype DetachedIndoor Features Sump PumpOwnership FreeholdWaterfront NoneBasement Full, UnfinishedFoundation Poured ConcreteHeating / Cooling Forced AirHeating Fuel GasSewer Sewer
Parking 3.00
ASAP

Sun

5

Apr

Mon

6

Apr

Tue

7

Apr

Wed

8

Apr

Thu

9

Apr

Fri

10

Apr

Sat

11

Apr

Sun

12

Apr

Mon

13

Apr

Tue

14

Apr

Wed

15

Apr

Thu

16

Apr

Fri

17

Apr

Sat

18

Apr

Sun

19

Apr

Mon

20

Apr

Tue

21

Apr

Wed

22

Apr

Thu

23

Apr

Fri

24

Apr

Sat

25

Apr

Sun

26

Apr

Mon

27

Apr

Tue

28

Apr

Wed

29

Apr

Thu

30

Apr

Fri

1

May

Sat

2

May

Sun

3

May

By clicking “Get pre-qualified” and/or 'Submit' you are expressly consenting, in writing, to receive telemarketing and other messages, including artificial or prerecorded voices, via automated calls or texts from jumprealty.ca and up.mortgages at the number you provided above. This consent is not required to purchase any good or service. Message and data rates may apply, frequency varies. Text HELP for help or STOP to cancel. More details in Terms of Use and Privacy Policy.

Listing Agency:  BLUE FOREST REALTY INC.

* Data is provided courtesy of PROPTX. The information provided herein must only be used by consumers that have a bona fide interest in the purchase, sale, or lease of real estate and may not be used for any commercial purpose or any other purpose. The information is deemed reliable but is not guaranteed accurate by PROPTX.

Hospital
Parks
Schools
Place of Worship
Please select an amenity above to view a list.

Recommended Properties

Loading...
Lot 49 Stella Avenue
Southwest Middlesex , Ontario
3 3 $627,850
Get more info