For Sale - LOT 50 STELLA Street, Southwest Middlesex, Ontario

Est payment $3,153/mo
Views   2
Time on Jump  37 day
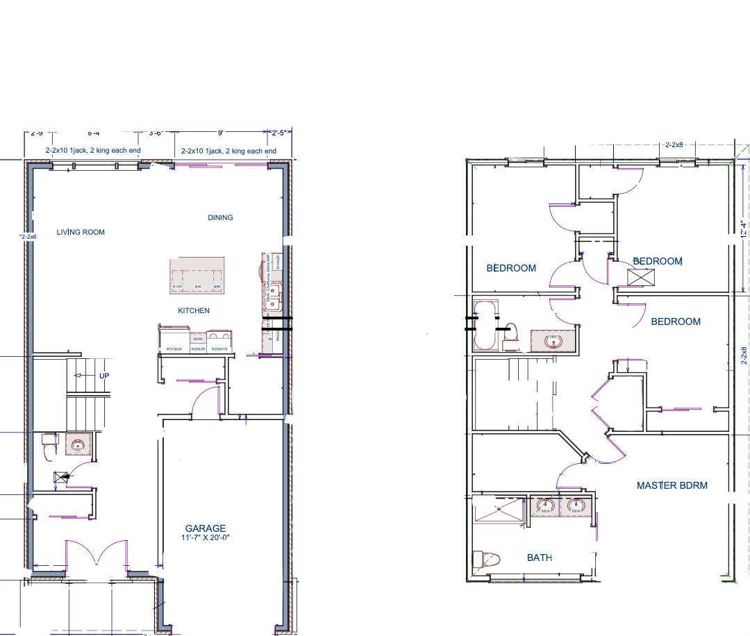
  • New build with 1,946 sqft of stylish and versatile living space.
  • Open main floor perfect for family gatherings and entertaining.
  • Four bedrooms upstairs for family, guests or a home office.
  • Primary suite includes a private 4-pc ensuite and walk-in closet.
  • Basement offers potential for extra living space and a future bath.



Bakker design & build inc. Presents "the abbey". This new build offers 1,946 sqft., and delivers style, space, and versatility across two floors. The open main floor layout features a large living room, a family-friendly dining space, and a kitchen with plenty of counter space and storage. Upstairs, four bedrooms provide flexibility for family, guests, or a home office, while the primary suite offers a private retreat with a 4-pc ensuite bath and walk-in closet. A full bath and dedicated laundry room on this floor add everyday convenience. The basement offers future living space with a rough-in for a three-piece bath, making this home as adaptable as it is inviting. To be built! Other lots and designs are available. Price based on base lot, premiums extra.
Listing IDX12824146
AddressLOT 50 STELLA Street
CitySouthwest Middlesex, Ontario
Price$656,700
Bed / Bath4 / 3 Full
Style2-Storey, Detached
ConstructionVinyl Siding, Brick
TypeResidential
StatusFor Sale
Subtype DetachedIndoor Features Sump PumpOwnership FreeholdWaterfront NoneBasement Full, UnfinishedFoundation Poured ConcreteHeating / Cooling Forced AirHeating Fuel GasSewer Sewer
Parking 3.00
ASAP

Sun

5

Apr

Mon

6

Apr

Tue

7

Apr

Wed

8

Apr

Thu

9

Apr

Fri

10

Apr

Sat

11

Apr

Sun

12

Apr

Mon

13

Apr

Tue

14

Apr

Wed

15

Apr

Thu

16

Apr

Fri

17

Apr

Sat

18

Apr

Sun

19

Apr

Mon

20

Apr

Tue

21

Apr

Wed

22

Apr

Thu

23

Apr

Fri

24

Apr

Sat

25

Apr

Sun

26

Apr

Mon

27

Apr

Tue

28

Apr

Wed

29

Apr

Thu

30

Apr

Fri

1

May

Sat

2

May

Sun

3

May

By clicking “Get pre-qualified” and/or 'Submit' you are expressly consenting, in writing, to receive telemarketing and other messages, including artificial or prerecorded voices, via automated calls or texts from jumprealty.ca and up.mortgages at the number you provided above. This consent is not required to purchase any good or service. Message and data rates may apply, frequency varies. Text HELP for help or STOP to cancel. More details in Terms of Use and Privacy Policy.

Listing Agency:  BLUE FOREST REALTY INC.

* Data is provided courtesy of PROPTX. The information provided herein must only be used by consumers that have a bona fide interest in the purchase, sale, or lease of real estate and may not be used for any commercial purpose or any other purpose. The information is deemed reliable but is not guaranteed accurate by PROPTX.

Hospital
Parks
Schools
Place of Worship
Please select an amenity above to view a list.

Recommended Properties

Loading...
Lot 50 Stella Street
Southwest Middlesex , Ontario
4 3 $656,700
Get more info