For Sale - Lot 8 Ridgeline Drive, Alnwick/Haldimand, Ontario

Est payment $5,762/mo
Views   1
Time on Jump  1 days
  • Spacious two-storey home with 2,860 sqft of living space.
  • Open main floor designed for everyday living and entertaining.
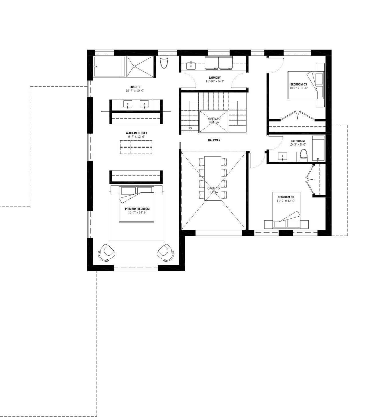
  • Primary suite with large walk-in closet and ensuite bathroom.
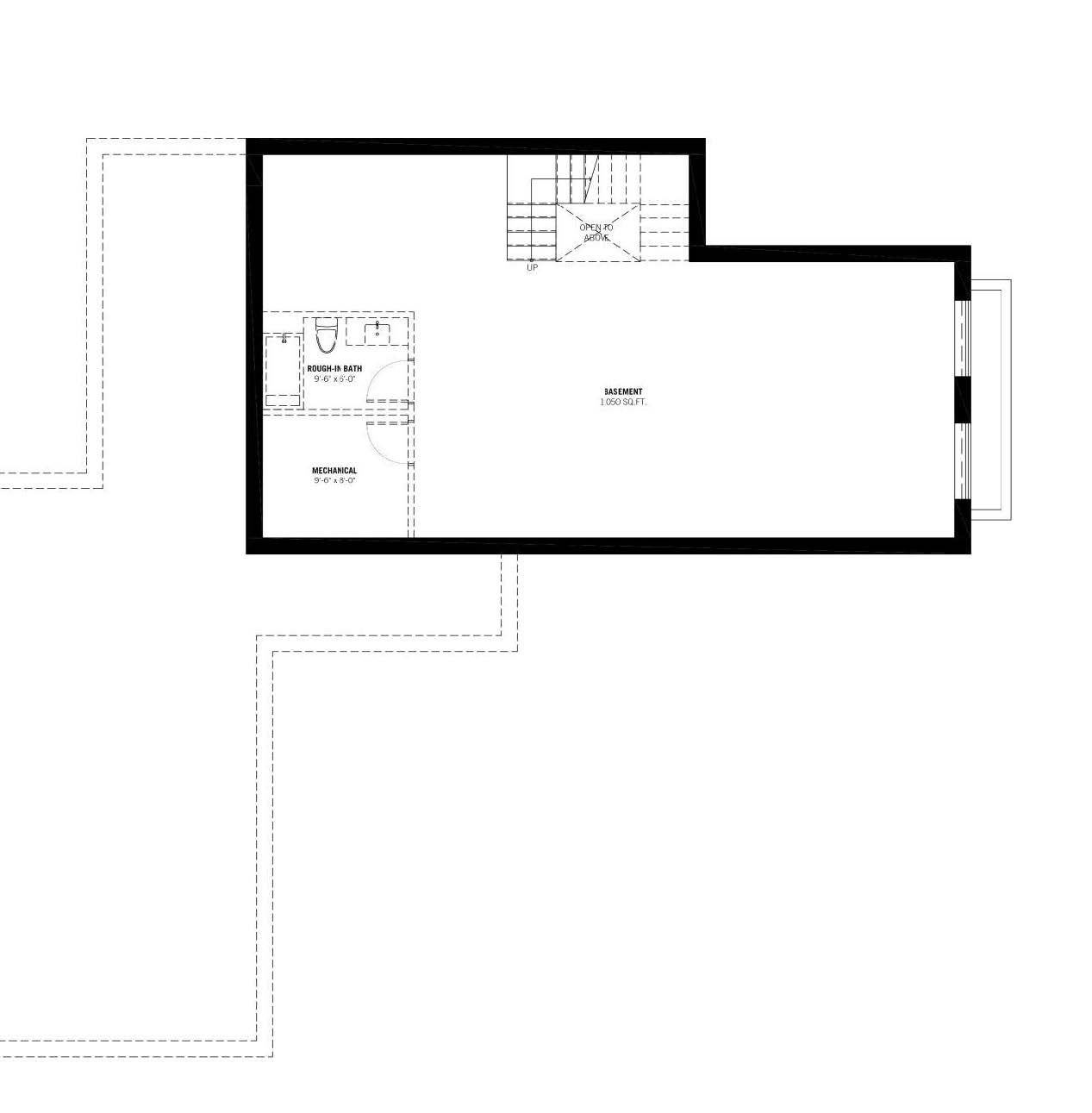
  • Unfinished basement offers over 2,300 sqft of customization potential.
  • Located in Grafton Heights with community services and lake views.



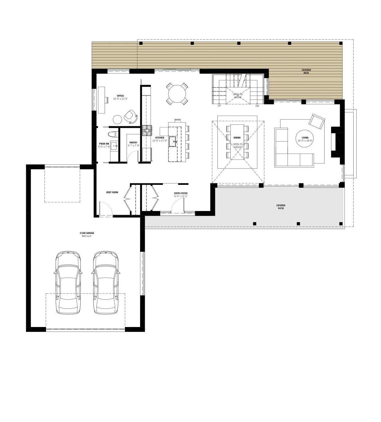
The ridgeview is a thoughtfully designed two-storey home offering 2,860 sqft of refined living space, ideal for those looking for room to grow without compromising on style or function. A striking front elevation and welcoming covered porch set the tone from the moment you arrive. The main floor is built for both everyday living and entertaining, featuring a spacious kitchen with generous island, separate dining room, and an expansive living room with open-to-above detail that adds light and architectural interest. A main floor powder room and dedicated laundry room add convenience, while the 2-car garage offers ample storage and practicality. Upstairs, the primary suite is a true retreat with a large walk-in closet and beautifully sized ensuite. Two additional bedrooms and a full bath complete the second level, providing comfort and privacy for family or guests. The unfinished basement offers over 2,300 sqft of additional potential, ready to be customized to suit your lifestyle. Situated in the sought-after grafton heights community, this home blends modern design with small-town charm. It offers town services, streetlights, and beautiful views of lake ontario just minutes away.
Listing IDX13011640
AddressLot 8 Ridgeline Drive
CityAlnwick/Haldimand, Ontario
Price$1,199,999
Bed / Bath3 / 3 Full
StyleBungalow, Detached
ConstructionOther
TypeResidential
StatusFor Sale
Subtype DetachedIndoor Features Floor DrainOwnership FreeholdBasement Development Potential, Full, UnfinishedFoundation ConcreteHeating / Cooling Forced AirHeating Fuel GasSewer Septic
Parking 6.00
ASAP

Sun

19

Apr

Mon

20

Apr

Tue

21

Apr

Wed

22

Apr

Thu

23

Apr

Fri

24

Apr

Sat

25

Apr

Sun

26

Apr

Mon

27

Apr

Tue

28

Apr

Wed

29

Apr

Thu

30

Apr

Fri

1

May

Sat

2

May

Sun

3

May

Mon

4

May

Tue

5

May

Wed

6

May

Thu

7

May

Fri

8

May

Sat

9

May

Sun

10

May

Mon

11

May

Tue

12

May

Wed

13

May

Thu

14

May

Fri

15

May

Sat

16

May

Sun

17

May

By clicking “Get pre-qualified” and/or 'Submit' you are expressly consenting, in writing, to receive telemarketing and other messages, including artificial or prerecorded voices, via automated calls or texts from jumprealty.ca and up.mortgages at the number you provided above. This consent is not required to purchase any good or service. Message and data rates may apply, frequency varies. Text HELP for help or STOP to cancel. More details in Terms of Use and Privacy Policy.

Listing Agency:  ROYAL LEPAGE PROALLIANCE REALTY

* Data is provided courtesy of PROPTX. The information provided herein must only be used by consumers that have a bona fide interest in the purchase, sale, or lease of real estate and may not be used for any commercial purpose or any other purpose. The information is deemed reliable but is not guaranteed accurate by PROPTX.

Hospital
Parks
Schools
Place of Worship
Please select an amenity above to view a list.

Recommended Properties

Loading...
Lot 8 Ridgeline Drive
Alnwick/Haldimand , Ontario
3 3 $1,199,999
Get more info