For Sale - N/A Westney Road, Ajax, Ontario

Est payment $21,032/mo
Views   1
Time on Jump  184 day
  • 1.82-acre prime location with flexible zoning for many uses.
  • Excellent visibility and accessibility on Westney Road South.
  • Close to 401 Highway for easier transportation.
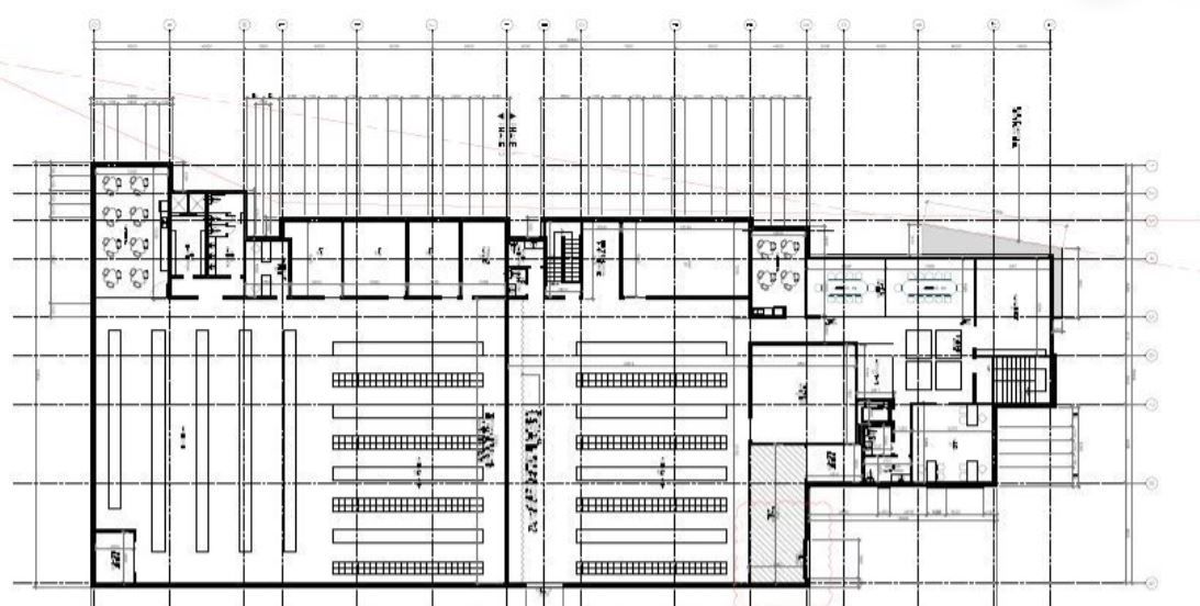
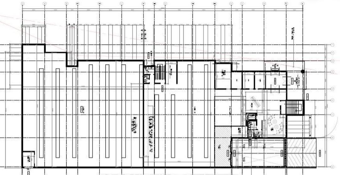
  • Potential for a two-story building with 44,000 square feet.
  • Environmental assessments confirm land is free of contamination.



1. 82 acre property in a prime location with versatile zoning, ideal for a variety of commercial and industrial uses, providing endless opportunities for development. Excellent frontage on a main road in ajax (westney road south)and ideal topography. Close proximity to the 401 highway ensures excellent accessibility and visibility. The property has potential for a two-story building with a total area of 44,000 square feet. The current owner has already submitted all required documents and applied for site plan approval, which is currently under process. Vacant land not developed. This expansive parcel has been thoroughly vetted, with both phase 1 and phase 2 environmental site assessments confirming the land is free of contamination. **extras** * front con, pt 1 40r10545; s/t an easement, if any, in favour of the corporation of the town of ajax, over pt lt 12 range 3 broken front con, pt 2, 40r6913; s/t lt145266,lt145267 ajax. All information to be verified by the buyer.
Listing IDE12435878
AddressN/A Westney Road
CityAjax, Ontario
Price$4,380,000
StyleIndustrial
TypeIndustrial/Commercial
StatusFor Sale
Subtype IndustrialHeating / Cooling Gas Forced Air ClosedSewer Sanitary+Storm
ASAP

Sat

4

Apr

Sun

5

Apr

Mon

6

Apr

Tue

7

Apr

Wed

8

Apr

Thu

9

Apr

Fri

10

Apr

Sat

11

Apr

Sun

12

Apr

Mon

13

Apr

Tue

14

Apr

Wed

15

Apr

Thu

16

Apr

Fri

17

Apr

Sat

18

Apr

Sun

19

Apr

Mon

20

Apr

Tue

21

Apr

Wed

22

Apr

Thu

23

Apr

Fri

24

Apr

Sat

25

Apr

Sun

26

Apr

Mon

27

Apr

Tue

28

Apr

Wed

29

Apr

Thu

30

Apr

Fri

1

May

Sat

2

May

By clicking “Get pre-qualified” and/or 'Submit' you are expressly consenting, in writing, to receive telemarketing and other messages, including artificial or prerecorded voices, via automated calls or texts from jumprealty.ca and up.mortgages at the number you provided above. This consent is not required to purchase any good or service. Message and data rates may apply, frequency varies. Text HELP for help or STOP to cancel. More details in Terms of Use and Privacy Policy.

Listing Agency:  P2 REALTY INC.

* Data is provided courtesy of PROPTX. The information provided herein must only be used by consumers that have a bona fide interest in the purchase, sale, or lease of real estate and may not be used for any commercial purpose or any other purpose. The information is deemed reliable but is not guaranteed accurate by PROPTX.

Hospital
Parks
Schools
Place of Worship
Please select an amenity above to view a list.

Recommended Properties

Loading...
N/a Westney Road
Ajax , Ontario
$4,380,000
Get more info