For Sale - Part 3, Plan 51R-45070 Part of Lot 19 Concession 2 Road, Springwater, Ontario

Est payment $7,287/mo
Views   1
Time on Jump  1 days
  • Build a custom estate home on premium rural ravine lots.
  • Enjoy privacy and natural settings with Environmental Protection lands backing lots.
  • Choose from an extensive portfolio or bring your own designs.
  • Experience a seamless process with in-house architectural and interior designers.
  • View model homes to assess construction quality and craftsmanship.



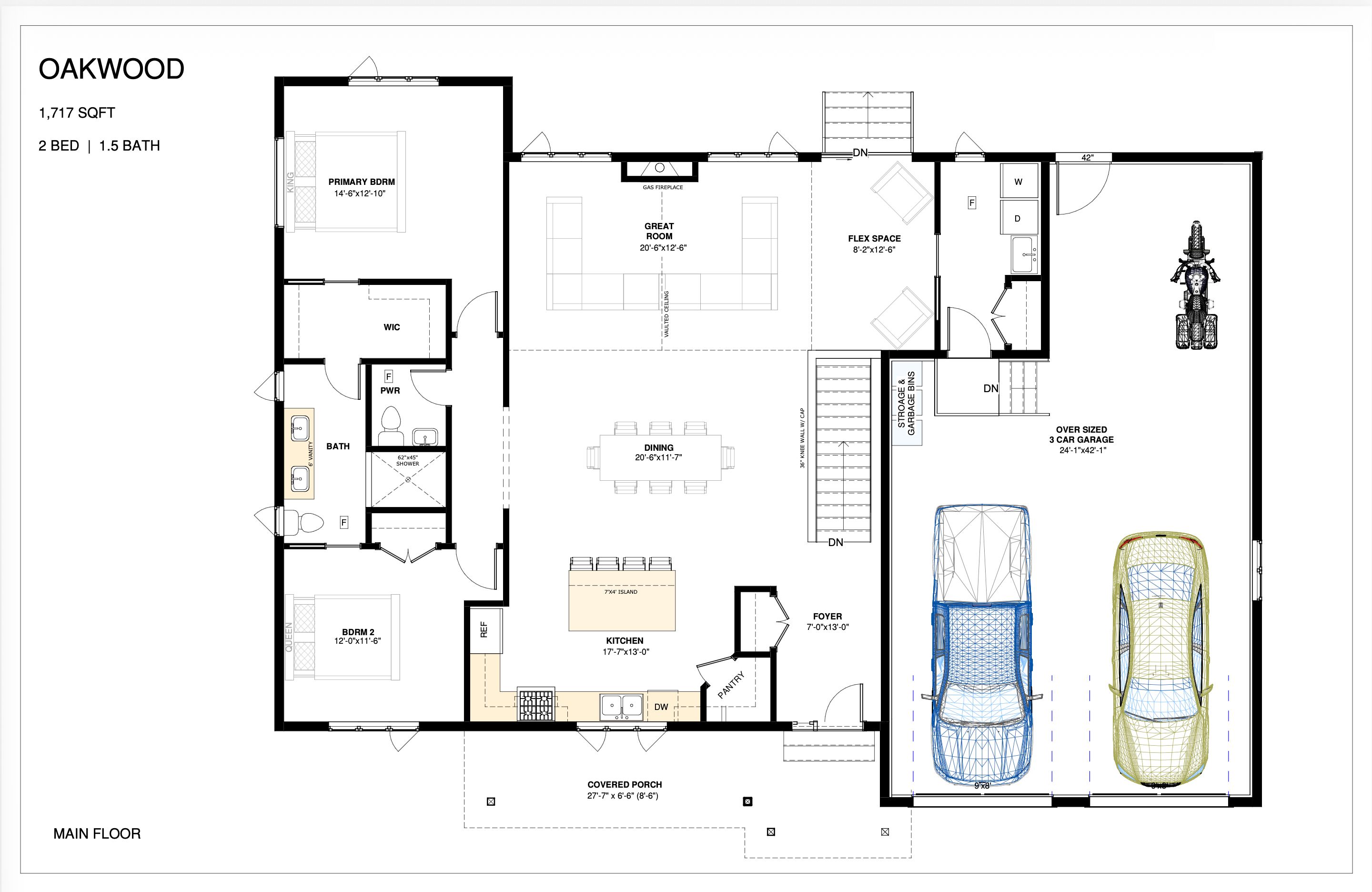
Considering a spring build? The planning process starts now... Exceptional opportunity to build your custom estate home on one of four premium rural ravine lots in the highly desirable community of midhurst. Opportunities of this calibre are rare, offering the perfect blend of privacy, space, and proximity to barrie, schools, and everyday amenities. Lots feature ravine settings backing onto environmental protection (ep) lands, providing enhanced privacy and a natural backdrop. These listings are offered as design-build opportunities with a reputable local builder with over 30 years of experience. The builder has been granted written authorization by the landowner to market and advertise proposed homes for sale. Any agreement of purchase and sale will be conditional upon the builder successfully securing the buyer's selected lot. Conceptual floor plans and renderings are provided for illustrative purposes and have been professionally priced using standard luxury builder finish selections. Renderings may depict optional or upgraded exterior features that are not included in the base price. Buyers may select from the builder's extensive portfolio of thoughtfully designed homes, customize an existing plan, or bring their own plans to be reviewed and priced. The builder offers a fully integrated design experience, including an in-house bcin-qualified architectural designer and an in-house interior designer, ensuring a seamless process from concept to completion. Model homes are available for viewing, allowing buyers to experience the builder's construction quality, finishes, and craftsmanship first hand. Lots may also be purchased separately, subject to availability. A rare chance to secure a custom home in one of simcoe county's most coveted communities-where design flexibility, proven craftsmanship, and location come together. Taxes not yet assessed. Municipal address not yet assigned.
Listing IDS12741526
AddressPart 3, Plan 51R-45070 Part of Lot 19 Co…
CitySpringwater, Ontario
Price$1,470,000
Bed / Bath2 / 2 Full
StyleBungalow-Raised, Detached
ConstructionOther
TypeResidential
StatusFor Sale
Subtype DetachedIndoor Features In-Law Capability, Water HeaterAmenities Wooded/Treed, River/StreamOwnership FreeholdViews Trees/Woods, Ridge, Creek/StreamBasement Development Potential, UnfinishedFoundation ConcreteHeating / Cooling Forced AirHeating Fuel PropaneSewer Septic
Parking 9.00
ASAP

Sat

31

Jan

Sun

1

Feb

Mon

2

Feb

Tue

3

Feb

Wed

4

Feb

Thu

5

Feb

Fri

6

Feb

Sat

7

Feb

Sun

8

Feb

Mon

9

Feb

Tue

10

Feb

Wed

11

Feb

Thu

12

Feb

Fri

13

Feb

Sat

14

Feb

Sun

15

Feb

Mon

16

Feb

Tue

17

Feb

Wed

18

Feb

Thu

19

Feb

Fri

20

Feb

Sat

21

Feb

Sun

22

Feb

Mon

23

Feb

Tue

24

Feb

Wed

25

Feb

Thu

26

Feb

Fri

27

Feb

Sat

28

Feb

By clicking “Get pre-qualified” and/or 'Submit' you are expressly consenting, in writing, to receive telemarketing and other messages, including artificial or prerecorded voices, via automated calls or texts from jumprealty.ca and up.mortgages at the number you provided above. This consent is not required to purchase any good or service. Message and data rates may apply, frequency varies. Text HELP for help or STOP to cancel. More details in Terms of Use and Privacy Policy.

Listing Agency:  SUTTON GROUP INCENTIVE REALTY INC.
Hospital
Parks
Schools
Place of Worship
Please select an amenity above to view a list.

Recommended Properties

Loading...
Part 3, Plan 51r-45070 Part Of Lot 19 Concession 2 Road
Springwater , Ontario
2 2 $1,470,000
Get more info