For Sale - TBD Intersection is Clair Rd West & Gosling Gardens N/A, Guelph, Ontario

Est payment $2,809/mo
Views   2
Time on Jump  6 day
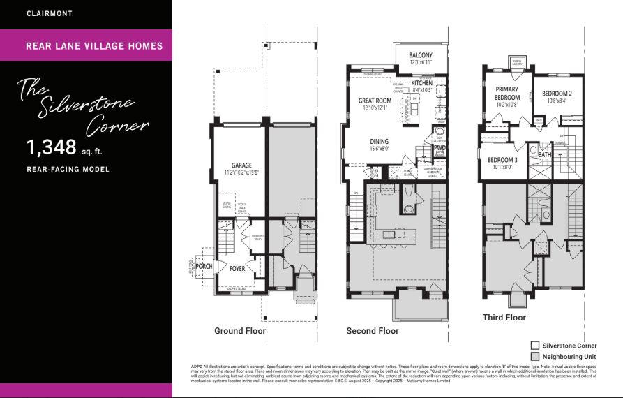
  • Modern 3-bedroom townhome with 1,348 sq ft of low-maintenance living.
  • Open-concept living areas with a bright kitchen and dining space.
  • Two balconies offering outdoor space and relaxation options.
  • Walking distance to grocery stores, parks, schools, and public transit.
  • Exclusive builder incentives include free condo fees and complimentary internet.



Welcome to the silverstone corner (b) lot 1637 in mattamy homes' sought-after clairmont community - a beautifully designed 3-bedroom townhome offering 1,348 sq ft of modern, low-maintenance living in one of guelph's most convenient locations. With one of the best prices per square foot in guelph, this new build presents an incredible opportunity for first-time buyers, young professionals, or investors looking to secure a quality-built property in a high-demand area. Thoughtfully laid out across three levels, the home offers a functional and stylish design. The main floor features a welcoming foyer with interior access to the garage. Upstairs, the second level showcases an open-concept layout with a bright kitchen complete with quartz countertops, seamlessly flowing into the dining area and spacious great room - perfect for both everyday living and entertaining. A convenient powder room and private balcony complete this level. The third floor offers three well-appointed bedrooms, a full bathroom, and an additional balcony - creating a comfortable retreat with separation between living and sleeping spaces. Enjoy added value with exclusive builder incentives, including 2 years of free condo fees and 1 year of complimentary internet, making this an even more attractive and affordable option. Located in the clairfields neighbourhood, you're surrounded by an abundance of amenities within walking distance - including grocery stores, restaurants, gyms, parks, schools, and public transit. Plus, a new recreation centre is currently under development nearby, adding even more future value to this growing community. Eligible first-time home buyers could receive up to an additional 13% off the purchase price in government rebates with the purchase of this new home. Whether you're looking to get into the market, simplify your lifestyle, or invest in a thriving neighbourhood, this is a home that checks all the boxes.
Listing IDX12929950
AddressTBD Intersection is Clair Rd West & …
CityGuelph, Ontario
Price$584,990
Bed / Bath3 / 2 Full
Style3-Storey, Condo Townhouse
ConstructionBrick, Vinyl Siding
TypeCondominium
StatusFor Sale
Subtype Condo TownhouseIndoor Features Auto Garage Door Remote, Water Heater, In-Suite LaundryBasement NoneHeating / Cooling Heat PumpHeating Fuel Gas
Parking 2.00
ASAP

Fri

3

Apr

Sat

4

Apr

Sun

5

Apr

Mon

6

Apr

Tue

7

Apr

Wed

8

Apr

Thu

9

Apr

Fri

10

Apr

Sat

11

Apr

Sun

12

Apr

Mon

13

Apr

Tue

14

Apr

Wed

15

Apr

Thu

16

Apr

Fri

17

Apr

Sat

18

Apr

Sun

19

Apr

Mon

20

Apr

Tue

21

Apr

Wed

22

Apr

Thu

23

Apr

Fri

24

Apr

Sat

25

Apr

Sun

26

Apr

Mon

27

Apr

Tue

28

Apr

Wed

29

Apr

Thu

30

Apr

Fri

1

May

By clicking “Get pre-qualified” and/or 'Submit' you are expressly consenting, in writing, to receive telemarketing and other messages, including artificial or prerecorded voices, via automated calls or texts from jumprealty.ca and up.mortgages at the number you provided above. This consent is not required to purchase any good or service. Message and data rates may apply, frequency varies. Text HELP for help or STOP to cancel. More details in Terms of Use and Privacy Policy.

Listing Agency:  Coldwell Banker Neumann Real Estate

* Data is provided courtesy of PROPTX. The information provided herein must only be used by consumers that have a bona fide interest in the purchase, sale, or lease of real estate and may not be used for any commercial purpose or any other purpose. The information is deemed reliable but is not guaranteed accurate by PROPTX.

Hospital
Parks
Schools
Place of Worship
Please select an amenity above to view a list.

Recommended Properties

Loading...
Tbd Intersection Is Clair Rd West & Gosling Gardens N/a
Guelph , Ontario
3 2 $584,990
Get more info