For Sale - TH-152D Cypress Street, The Nation, Ontario

Est payment $2,578/mo
Views   1
Time on Jump  89 day
  • New two-story townhome in a charming rural setting with modern amenities.
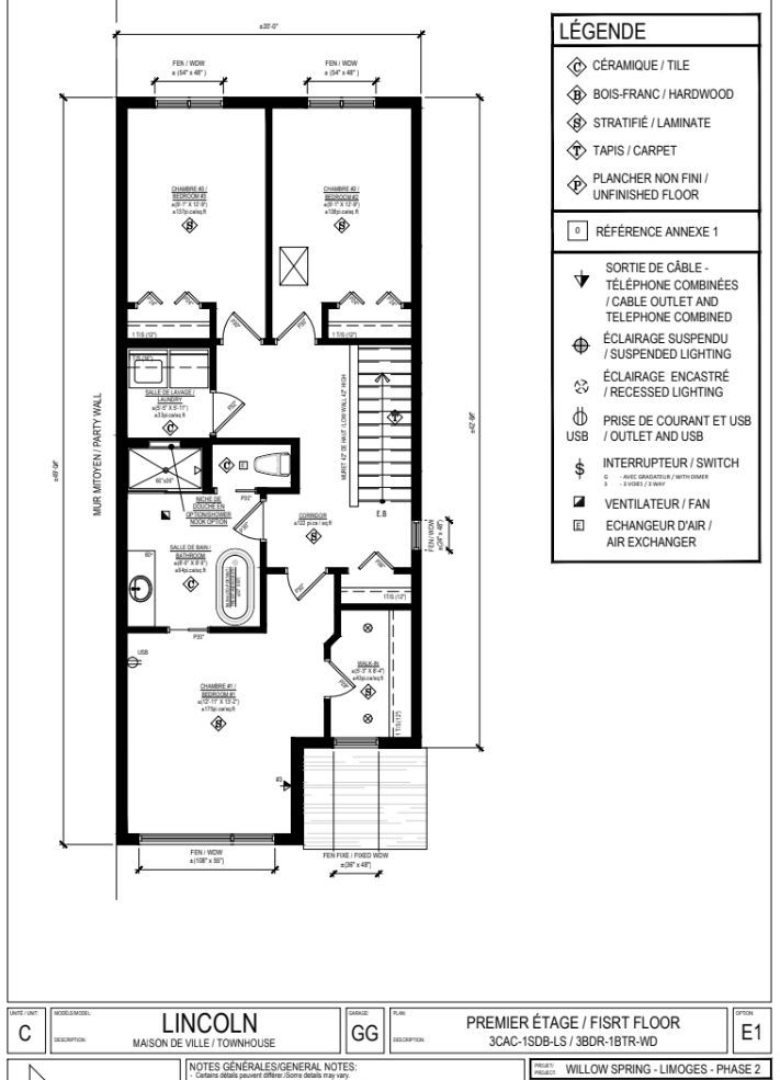
  • Spacious layout with 3 bedrooms and 1.5 bathrooms, customizable options available.
  • Close proximity to Ottawa, just a 25-minute drive away.
  • Access to schools, sports facilities, and local events in Limoges.
  • Nearby attractions include Larose Forest and Calypso water park.



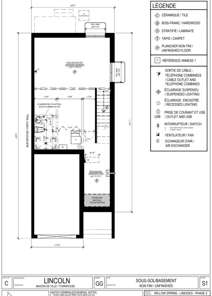
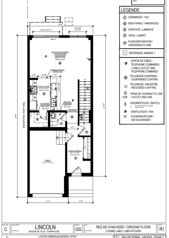
**open house sunday from 2 - 4 pm @ 235 bourdeau bd, limoges**welcome to willow springs phase 2 - limoges's newest residential development! This exciting new development combines the charm of rural living with easy access to amenities, and just a mere 25-minute drive from ottawa. Introducing the "lincoln (end unit e1)" model, a stylish two-story townhome offering 1,627 sq. Ft. Of thoughtfully designed living space, including 3 bedrooms, 1. 5 bathrooms (2. 5 available as an option), and a host of impressive standard features. Experience all that the thriving town of limoges has to offer, from reputable schools and sports facilities, to vibrant local events, the scenic larose forest, and calypso the largest themed water park in canada. Anticipated closing as early as 6-9 months from firm purchase (date tbd). Prices and specifications are subject to change without notice. Ground photos are of previously built townhouses in another project (finishes & layout may differ). Model home tours now available. Now taking reservations for townhomes & detached homes in phase 2!
Listing IDX12249553
AddressTH-152D Cypress Street
CityThe Nation, Ontario
Price$519,990
Bed / Bath3 / 2 Full
Style2-Storey, Att/Row/Townhouse
ConstructionAluminum Siding, Brick
TypeResidential
StatusFor Sale
Subtype Att/Row/TownhouseIndoor Features Air Exchanger, On Demand Water HeaterOutdoor Features DeckOwnership FreeholdBasement Full, UnfinishedFoundation Poured ConcreteHeating / Cooling Forced AirHeating Fuel GasSewer Sewer
Parking 2.00
ASAP

Tue

16

Dec

Wed

17

Dec

Thu

18

Dec

Fri

19

Dec

Sat

20

Dec

Sun

21

Dec

Mon

22

Dec

Tue

23

Dec

Wed

24

Dec

Thu

25

Dec

Fri

26

Dec

Sat

27

Dec

Sun

28

Dec

Mon

29

Dec

Tue

30

Dec

Wed

31

Dec

Thu

1

Jan

Fri

2

Jan

Sat

3

Jan

Sun

4

Jan

Mon

5

Jan

Tue

6

Jan

Wed

7

Jan

Thu

8

Jan

Fri

9

Jan

Sat

10

Jan

Sun

11

Jan

Mon

12

Jan

Tue

13

Jan

By clicking “Get pre-qualified” and/or 'Submit' you are expressly consenting, in writing, to receive telemarketing and other messages, including artificial or prerecorded voices, via automated calls or texts from jumprealty.ca and up.mortgages at the number you provided above. This consent is not required to purchase any good or service. Message and data rates may apply, frequency varies. Text HELP for help or STOP to cancel. More details in Terms of Use and Privacy Policy.

Listing Agency:  ROYAL LEPAGE PERFORMANCE REALTY
Hospital
Parks
Schools
Place of Worship
Please select an amenity above to view a list.

Recommended Properties

Loading...
Th-152d Cypress Street
The Nation , Ontario
3 2 $519,990
Get more info