For Sale - 120 Clement Road, Toronto, Ontario

Est payment $4,264/mo
Views   1
Time on Jump  1 days
  • End-unit townhouse in a friendly enclave of just 14 homes.
  • Flexible layout with 2+1 bedrooms and 3 bathrooms across 3 levels.
  • Bright living room with gas fireplace and open kitchen leading to a large deck.
  • Versatile above-grade ground level with bonus bedroom and direct garage access.
  • Prime Richview location near parks, schools, and convenient transit options.



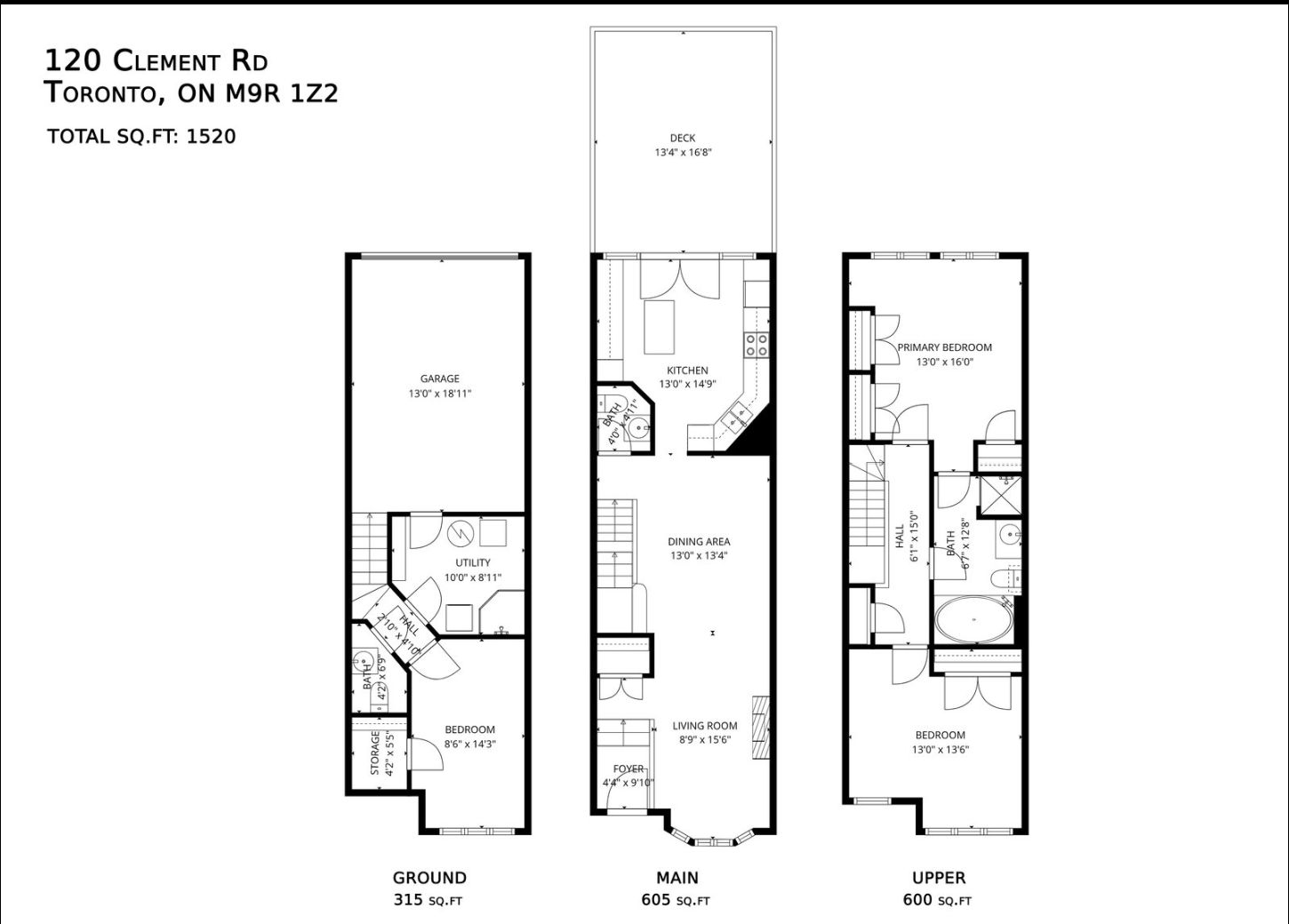
Offers welcomed anytime. Tucked just north of eglinton & kipling, 120 clement rd is the kind of home that quietly overdelivers. This freehold end-unit townhouse is set within an intimate enclave of just 14 homes, offering a rare combination of space, privacy, and a true neighbourhood feel. Inside, a thoughtful and flexible layout spans approximately 1,520 sqft, with 2+1 bedrooms and 3 bathrooms designed to support real day-to-day living across 3 above-grade levels. On the main level you're greeted by a bright living room with a gas fireplace and gleaming hardwood floors, anchored by an open kitchen that flows to an oversized 13'4" x 16'8" foot deck. Whether it's morning coffee, summer entertaining, or wine at golden hour, the deck feels like a true extension of the living space. Upstairs, 2 generous bedrooms occupy the upper level, including a calming primary retreat with cathedral ceilings and a semi-ensuite 4 piece bath. The above-grade ground level (there is no basement) adds exceptional versatility with a bonus bedroom and its own bathroom with shower, plus direct interior access to the garage. This level flexes easily as a family room, guest suite, home office, fitness space, or teen retreat, adapting as life changes. Set in highly desirable richview, this location strikes a rare balance between green space & convenience. Parks, trails, and multiple schools are all just a short walk away, making day-to-day routines simple and connected. Etobicoke north go station is a quick 5 minute drive, pearson airport is less than ten minutes away, and nearby transit routes and major arteries make for a streamlined cross-town commute. Parking is straightforward with a private garage plus an additional covered surface parking space. A low monthly potl fee of $155 covers snow removal, landscaping, and the upkeep of shared elements such as visitor parking, offering the ease of low-maintenance living while you still enjoy the independence of a freehold home.
Listing IDW12885284
Address120 Clement Road
CityToronto, Ontario
Price$888,000
Bed / Bath3 / 3 Full
Style3-Storey, Att/Row/Townhouse
ConstructionBrick
TypeResidential
StatusFor Sale
Subtype Att/Row/TownhouseIndoor Features Water Heater OwnedOutdoor Features DeckAmenities Place Of Worship, School, Public Transit, ParkOwnership FreeholdBasement NoneFoundation UnknownHeating / Cooling Forced AirHeating Fuel GasSewer Sewer
Parking 2.00
ASAP

Mon

16

Mar

Tue

17

Mar

Wed

18

Mar

Thu

19

Mar

Fri

20

Mar

Sat

21

Mar

Sun

22

Mar

Mon

23

Mar

Tue

24

Mar

Wed

25

Mar

Thu

26

Mar

Fri

27

Mar

Sat

28

Mar

Sun

29

Mar

Mon

30

Mar

Tue

31

Mar

Wed

1

Apr

Thu

2

Apr

Fri

3

Apr

Sat

4

Apr

Sun

5

Apr

Mon

6

Apr

Tue

7

Apr

Wed

8

Apr

Thu

9

Apr

Fri

10

Apr

Sat

11

Apr

Sun

12

Apr

Mon

13

Apr

By clicking “Get pre-qualified” and/or 'Submit' you are expressly consenting, in writing, to receive telemarketing and other messages, including artificial or prerecorded voices, via automated calls or texts from jumprealty.ca and up.mortgages at the number you provided above. This consent is not required to purchase any good or service. Message and data rates may apply, frequency varies. Text HELP for help or STOP to cancel. More details in Terms of Use and Privacy Policy.

Listing Agency:  ROYAL LEPAGE ESTATE REALTY

* Data is provided courtesy of PROPTX. The information provided herein must only be used by consumers that have a bona fide interest in the purchase, sale, or lease of real estate and may not be used for any commercial purpose or any other purpose. The information is deemed reliable but is not guaranteed accurate by PROPTX.

Hospital
Parks
Schools
Place of Worship
Please select an amenity above to view a list.

Recommended Properties

Loading...
120 Clement Road
Toronto , Ontario
3 3 $888,000
Get more info