For Sale - 35 Alldread Crescent, Clarington, Ontario

Est payment $5,522/mo
Views   1
Time on Jump  1 days
  • One of the largest lots in the Port of Newcastle, offering ample outdoor space.
  • Fully fenced yard with tiered decks, gazebo, and private hot tub area.
  • Flexible layout with distinct spaces for living, entertaining, and relaxation.
  • Spacious kitchen with granite counters and seamless flow to outdoor living.
  • Includes transferable Gold Membership for clubhouse amenities like pool and fitness.



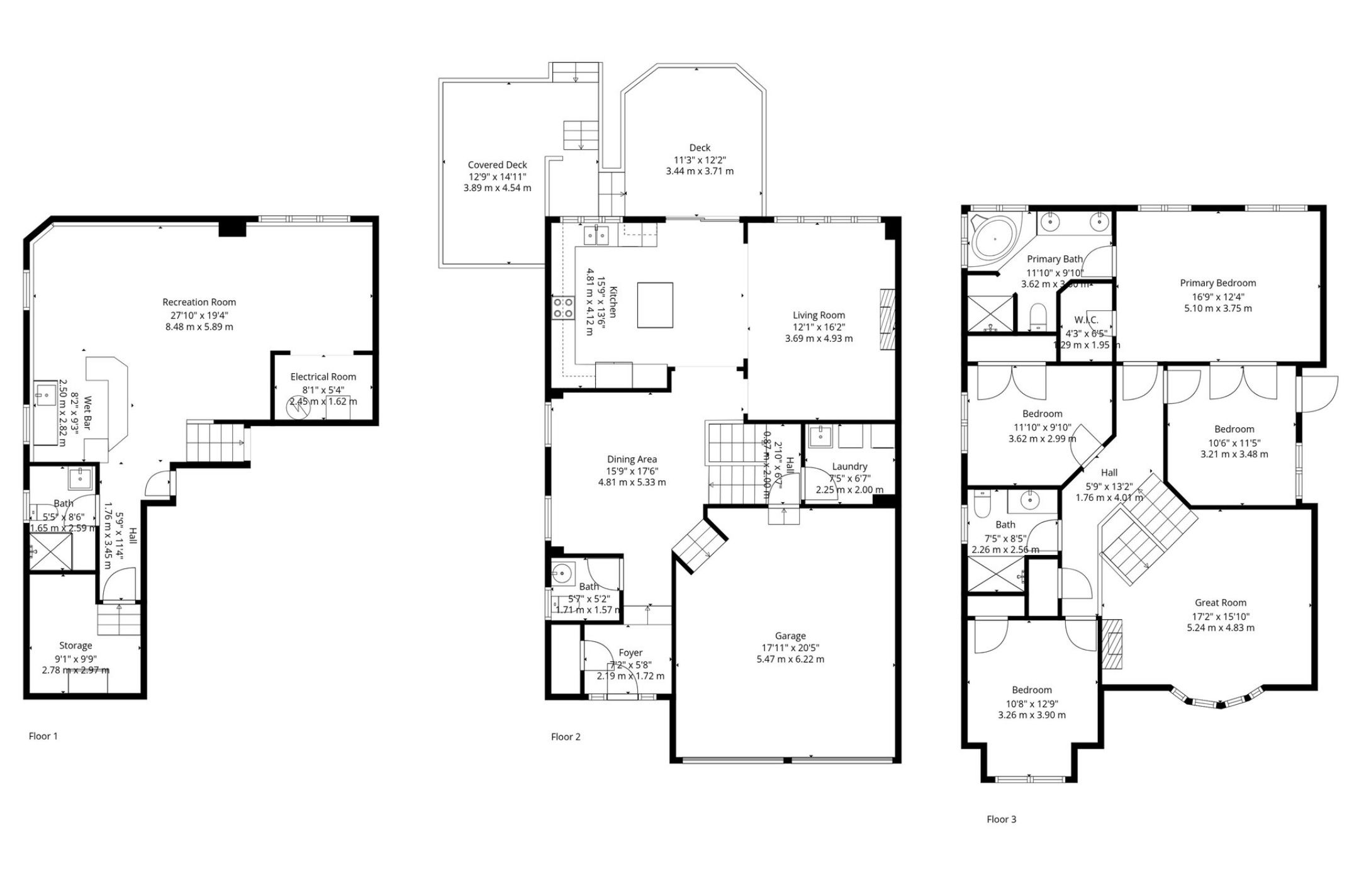
Set on one of the largest lots in the port of newcastle, this is the kind of property that rarely comes to market-and even more rarely gets replaced once you have it. Just shy of 1/3 of an acre, the outdoor space alone sets this home apart. Fully fenced with multiple zones to gather, unwind, and entertain, from tiered decks to a covered gazebo and a private hot tub retreat, this backyard was designed to be used-not just looked at. Inside, the layout offers a level of flexibility that works for real life. A soaring great room with a dramatic picture window brings in natural light and creates a true focal point, while a separate main floor living room with gas fireplace and a finished lower-level rec space give you three distinct areas to spread out, host, or simply have your own space. The kitchen is positioned at the centre of it all, with granite counters, a large island, and seamless flow to dining and outdoor living-exactly where you want it when the house is full. Upstairs, the primary suite features hardwood flooring, a walk-in closet with built-ins, and a 5-piece ensuite. Three additional bedrooms and a full bath complete the upper level, offering space for family, guests, or work-from-home needs. The lower level adds even more versatility, with above-grade windows, a 3-piece bath, wet bar, and direct access to the garage-ideal for a future in-law setup, guest suite, or keeping it as the ultimate entertaining zone. Located in the port of newcastle, you're steps to the waterfront trail, marina, and lake-but what truly sets this property apart is the inclusion of a transferable gold membership to the admirals walk clubhouse. Enjoy access to the indoor pool, fitness centre, theatre room, and lounge without the significant initiation fee typically required for new memberships. Monthly fees apply. Homes with this kind of lot, layout, and added value don't come up often. This is one you'll want to see in person. Under an hour to toronto. Watch the virtual tour.
Listing IDE13033656
Address35 Alldread Crescent
CityClarington, Ontario
Price$1,150,000
Bed / Bath4 / 4 Full
StyleSidesplit 4, Detached
ConstructionVinyl Siding, Brick Veneer
TypeResidential
StatusFor Sale
Subtype DetachedIndoor Features Air Exchanger, Auto Garage Door Remote, Carpet Free, Central Vacuum, ERV/HRV, In-Law Capability, Water Heater, Water MeterOutdoor Features Deck, Hot Tub, Landscaped, Porch, Year Round LivingAmenities Fenced Yard, Greenbelt/Conservation, Park, Marina, Lake/Pond, School Bus RouteOwnership FreeholdWaterfront WaterfrontCommunityBasement Full, Walk-Up, FinishedFoundation Poured ConcreteHeating / Cooling Forced AirHeating Fuel GasSewer Sewer
Parking 6.00
ASAP

Fri

24

Apr

Sat

25

Apr

Sun

26

Apr

Mon

27

Apr

Tue

28

Apr

Wed

29

Apr

Thu

30

Apr

Fri

1

May

Sat

2

May

Sun

3

May

Mon

4

May

Tue

5

May

Wed

6

May

Thu

7

May

Fri

8

May

Sat

9

May

Sun

10

May

Mon

11

May

Tue

12

May

Wed

13

May

Thu

14

May

Fri

15

May

Sat

16

May

Sun

17

May

Mon

18

May

Tue

19

May

Wed

20

May

Thu

21

May

Fri

22

May

By clicking “Get pre-qualified” and/or 'Submit' you are expressly consenting, in writing, to receive telemarketing and other messages, including artificial or prerecorded voices, via automated calls or texts from jumprealty.ca and up.mortgages at the number you provided above. This consent is not required to purchase any good or service. Message and data rates may apply, frequency varies. Text HELP for help or STOP to cancel. More details in Terms of Use and Privacy Policy.

Listing Agency:  ROYAL SERVICE REAL ESTATE INC.

* Data is provided courtesy of PROPTX. The information provided herein must only be used by consumers that have a bona fide interest in the purchase, sale, or lease of real estate and may not be used for any commercial purpose or any other purpose. The information is deemed reliable but is not guaranteed accurate by PROPTX.

Hospital
Parks
Schools
Place of Worship
Please select an amenity above to view a list.

Recommended Properties

Loading...
35 Alldread Crescent
Clarington , Ontario
4 4 $1,150,000
Get more info